Capannone in asta a Villafranca di Verona

In vendita
Capannone
Villafranca di Verona
511.200 €
Descrizione
Offerta minima € 511.200,00
Rialzo minimo € 10.000,00
Data asta 25/03/2026

Questo immobile rappresenta una delle soluzioni presenti nella tua città, se vuoi conoscerne altre, non esitare a contattarci senza impegno.

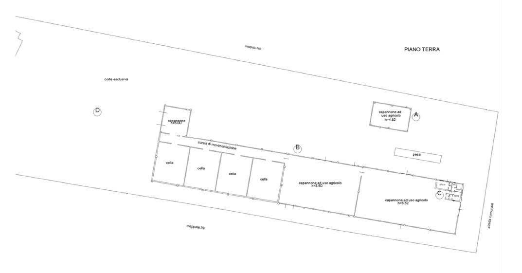
Piena proprietà di capannone destinato ad attività produttive connesse al settore agricolo con ampia corte esclusiva che circonda il complesso edilizio ed un secondo fabbricato, distaccato dal corpo principale anch'esso adibito a capannone ad uso agricolo sito nel Comune di Villafranca di Verona (VR), Via Afra Decò n. 22. L'unità è composta da due ampi locali destinati alla lavorazione di frutta e verdura; nel primo locale sono presenti un ufficio, due spogliatoi per il personale e relativi servizi igienici mentre nel secondo locale da quattro celle frigorifere e un'area dedicata al carico e scarico delle merci. La proprietà è composta da il capannone principale di circa 2.438 mq oltre al deposito attrezzi agricolo di circa 141 mq, alla cabina elettrica di circa 22 mq e all'area esterna di circa 9.089 mq.
Per ulteriori informazioni e visite contattare il numero +39 351 6343800 o 0459782475.
La nostra Agenzia, specializzata e riconosciuta, si occupa esclusivamente di Aste Immobiliari. 
Ci occupiamo della ricerca di procedure esecutive e concorsuali fornendo una consulenza tecnico legale, bancaria completa per la partecipazione all'asta e per l'acquisto dell'immobile.
I nostri servizi comprendono:
•Analisi della procedura esecutiva e valutazione del compendio immobiliare.
•Assistenza e Partecipazione all'asta fino all'assegnazione dell'immobile tramite, decreto di trasferimento o acquisto con rogito notarile.
•Ricerca migliore tipologia di finanziamento con gli istituiti di credito convenzionati con i Tribunali per l'acquisto dell'immobile in Asta.
Caratteristiche principali
Codice:
VR25032026
Città:
Villafranca di Verona
Categoria:
Capannone
Locali:
1
Mq:
2601
Mq Giardino:
9089
Classe energetica:
G
Mappa
Via Afra Decò, 22 - Villafranca di Verona (VR)
Planimetrie
Cookie preference