Due fabbricati al grezzo avanzato in asta a Legnago

In vendita
Porzione di Casa
Legnago
720.750 €
Descrizione
Offerta minima € 720.750, 00
Rilancio minimo € 5.000, 00
Data asta 25/03/2026

Questo immobile rappresenta una delle soluzioni presenti nella tua città, se vuoi conoscerne altre, non esitare a contattarci senza impegno.

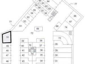
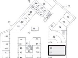
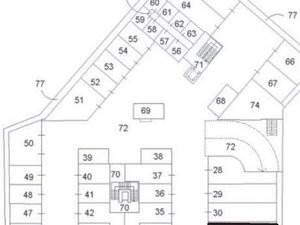
Piena proprietà di due fabbricati allo stato “grezzo avanzato” costituiti da 13 appartamenti, 20 autorimesse in box site al piano interrato, 4 posti auto-motocicli-biciclette ad uso comune al piano interrato, 4 locali da adibire ad uso commerciale e 4 cantine siti nel Comune di Legnago (VR), Via L. Cadorna. Gli appartamenti sviluppano una superficie totale di circa 1.326 mq, le cantine sviluppano una superficie totale di circa 27 mq, le autorimesse/posti auto/locali da adibire ad uso commerciale/cantine sviluppano una superficie di circa 653 mq totali.
Per ulteriori informazioni e visite contattare il numero +39 351 6343800 o 0459782475.
La nostra Agenzia, specializzata e riconosciuta, si occupa esclusivamente di Aste Immobiliari. 
Ci occupiamo della ricerca di procedure esecutive e concorsuali fornendo una consulenza tecnico legale, bancaria completa per la partecipazione all'asta e per l'acquisto dell'immobile.
I nostri servizi comprendono:
•Analisi della procedura esecutiva e valutazione del compendio immobiliare.
•Assistenza e Partecipazione all'asta fino all'assegnazione dell'immobile tramite, decreto di trasferimento o acquisto con rogito notarile.
•Ricerca migliore tipologia di finanziamento con gli istituiti di credito convenzionati con i Tribunali per l'acquisto dell'immobile in Asta.
Caratteristiche principali
Codice:
VR-250326
Città:
Legnago
Categoria:
Porzione di Casa
Locali:
62,5
Mq:
1326
Mq Box:
653
Classe energetica:
Non dichiarata
Mappa
Via L. Cadorna, snc - Legnago (VR)
Cookie preference