Ampio magazzino in Val di Fiemme

In affitto
Magazzino
Predazzo
1.900 € / mese
Descrizione
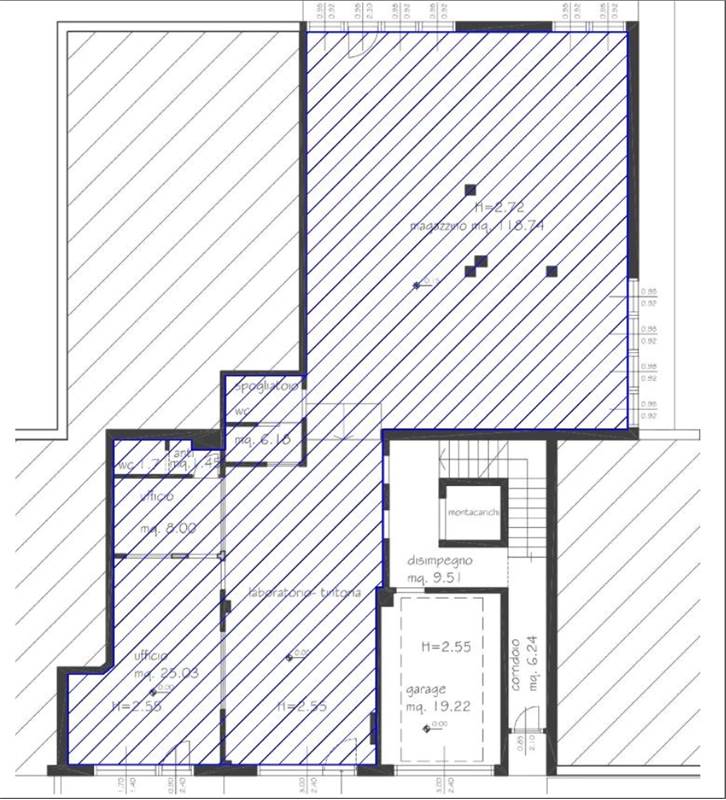
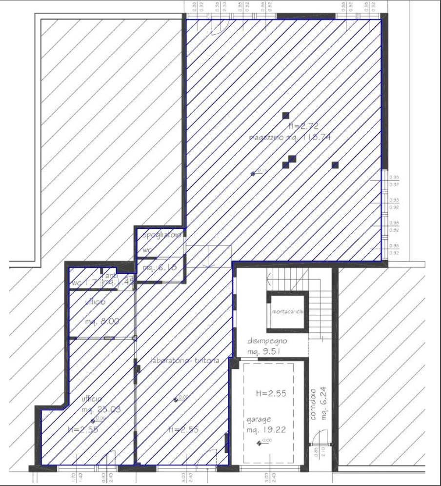
Disponibile da subito ampio magazzino anche adatto come laboratorio, oggi adibito a lavanderia industriale.
L'immobile si trova nella zona industriale di Predazzo, in Val di Fiemme, zona ricca di strutture ricettiva e comoda alle piste da sci, facilmente raggiungibile dalla via principale.

Superficie:
- 262 mq di spazio versatile ideale per stoccaggio, laboratorio o deposito ( attualmente adibito a lavanderia industriale )

Caratteristiche:
- Accesso diretto da strada asfaltata;
- Possibilità di accesso per mezzi pesanti;
- Alta disponibilità di luce naturale;
- Servizi igienici e area di carico/scarico;

Condizioni:
- Il magazzino è in ottime condizioni e pronto per essere utilizzato

Prezzo:
- € 1.900,00 mensili ( con possibilità di trattativa )
Per ulteriori informazioni o per organizzare una visita, contattare Vincenzo Leozappa al numero +39 351 5692189 o via mail a info@maisonaste.it

Non perdere questa occasione unica. Ti aspettiamo!
Caratteristiche principali
Codice:
AFF0124
Città:
Predazzo
Categoria:
Magazzino
Locali:
8
Bagni:
1
Mq:
260
Posti auto:
3
Piano:
Terra
Anno:
2003
Classe energetica:
D
Stato Immobile:
Buono
Grado:
Medio
Posizione:
Montagna
Panorama:
Vista Monti
Orientamento:
Nord
Lati Liberi:
2
Riscaldamento:
Centralizzato
Tipo Riscaldam.:
Pompa di Calore
Serramenti:
Buono
Tipo Contratto:
6+6 Anni
Accesso Disabili:
Nessuna Barriera
Mappa
via dell'artigianato - Predazzo (TN)
Cookie preference