Villetta a schiera in asta a Lazise - Localita' Coste

In vendita
Villetta schiera
Lazise
255.750 €
Descrizione
Offerta minima € 255.750,00
Rialzo minimo € 2.000,00
Data asta 29/04/2026

Questo immobile rappresenta una delle soluzioni presenti nella tua città, se vuoi conoscerne altre, non esitare a contattarci senza impegno.

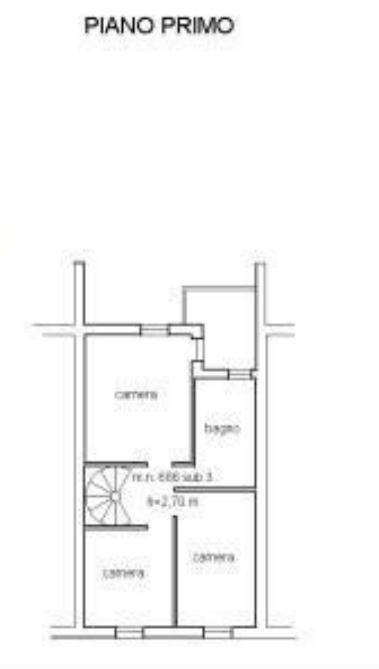
Piena proprietà di villetta a schiera centrale disposta su tre livelli e dotata di giardini esclusivi e pertinenziali autorimessa e cantina al piano interrato sito nel Comune di Lazise (VR), Via Risorgimento n. 19. L'immobile è composto al piano interrato da vano cantina ad uso locale disbrigo, secondo locale cantina ed un bagno ad uso lavanderia, al piano terra da soggiorno, stanza cucina, bagno con antibagno e scala a chiocciola, al piano primo da tre camere da letto, bagno e terrazzino. L'unità abitativa sviluppa una superficie di circa 114 mq oltre al portico di circa 12 mq, al terrazzino di circa 5 mq, alla cantina di circa 44 mq, all'autorimessa di circa 20 mq e al giardino di circa 85 mq.
Per ulteriori informazioni e visite contattare il numero +39 351 6343800 o 0459782475.
La nostra Agenzia, specializzata e riconosciuta, si occupa esclusivamente di Aste Immobiliari. 
Ci occupiamo della ricerca di procedure esecutive e concorsuali fornendo una consulenza tecnico legale, bancaria completa per la partecipazione all'asta e per l'acquisto dell'immobile.
I nostri servizi comprendono:
•Analisi della procedura esecutiva e valutazione del compendio immobiliare.
•Assistenza e Partecipazione all'asta fino all'assegnazione dell'immobile tramite, decreto di trasferimento o acquisto con rogito notarile.
•Ricerca migliore tipologia di finanziamento con gli istituiti di credito convenzionati con i Tribunali per l'acquisto dell'immobile in Asta.
Caratteristiche principali
Codice:
VR290426
Città:
Lazise
Categoria:
Villetta schiera
Locali:
7,5
Mq:
114
Box:
1
Mq Box:
20
Mq Giardino:
85
Terrazzi:
1
mq Terrazzo:
5
Classe energetica:
Non dichiarata
Mappa
Via risorgimento, 19 - Lazise (VR)
Cookie preference