Compendio immobiiiare in asta a Cerea

In vendita
Porzione di Casa
Cerea
150.000 €
Descrizione
Offerta minima € 150.000, 00
Rilancio minimo € 1.000, 00
Data asta 17/12/2025

Questo immobile rappresenta una delle soluzioni presenti nella tua città, se vuoi conoscerne altre, non esitare a contattarci senza impegno.

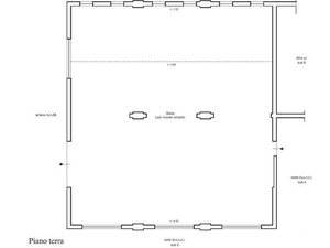
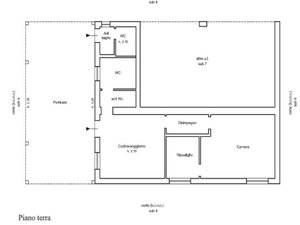
Piena proprietà di compendio immobiliare costituito da appartamento ai piani terra e primo con locali accessori ricavati nei corpi di fabbrica laterali ad un unico piano, appartamento al piano terra di un fabbricato indipendente, unità immobiliare sito al piano terra e costituita da due vani accessori e un porticato antistante l'entrata, autorimessa porticata sita al piano terra, annesso rustico ad un pino fuori terra e terreno adiacente sito nel Comune di Cerea (VR), Via Ca' Rotte n. 11. Il primo appartamento sviluppa una superficie di circa 241 mq ed è composto a piano terra da ingresso, cucina, pranzo, soggiorno, studio, camera anti bagno e bagno, al piano primo da disimpegno, quattro camere da letto, bagno e vano scale. I locali accessori sviluppano una superficie di circa 88 mq, sono ricavati nei corpi di fabbrica laterali e così suddivisi: quello ad ovest è composto da un grande locale finito al grezzo mentre quello ad est da un locale utilizzato come lavanderia e bagno. Il secondo appartamento sviluppa una superficie di circa 70 mq ed è composto da soggiorno-cucina, bagno con antibagno e camera da letto con locale ripostiglio. L'unità immobiliare al piano terra sviluppa una superficie di circa 35 mq ed è costituita da due vani accessori con ingresso indipendente. L'autorimessa porticata sviluppa una superficie di circa 60 mq. Il rustico sviluppa una superficie di circa 275 mq. Il terreno agricolo sviluppa una superficie di circa 5.502 mq.
Per ulteriori informazioni e visite contattare il numero +39 351 6343800 o 0459782475.
La nostra Agenzia, specializzata e riconosciuta, si occupa esclusivamente di Aste Immobiliari. 
Ci occupiamo della ricerca di procedure esecutive e concorsuali fornendo una consulenza tecnico legale, bancaria completa per la partecipazione all'asta e per l'acquisto dell'immobile.
I nostri servizi comprendono:
•Analisi della procedura esecutiva e valutazione del compendio immobiliare.
•Assistenza e Partecipazione all'asta fino all'assegnazione dell'immobile tramite, decreto di trasferimento o acquisto con rogito notarile.
•Ricerca migliore tipologia di finanziamento con gli istituiti di credito convenzionati con i Tribunali per l'acquisto dell'immobile in Asta.
Caratteristiche principali
Codice:
VR171225
Città:
Cerea
Categoria:
Porzione di Casa
Locali:
16,5
Mq:
709
Mq Box:
70
Classe energetica:
G
Mappa
Via Ca' Rotte , 11 - Cerea (VR)
Cookie preference