Capannoni in asta a Nogarole Rocca

In vendita
Capannone
Nogarole Rocca
194.788 €
Descrizione
Offerta minima € 194.788,00
Rilancio minimo € 1.000, 00
Data asta 16/01/2026

Questo immobile rappresenta una delle soluzioni presenti nella tua città, se vuoi conoscerne altre, non esitare a contattarci senza impegno.

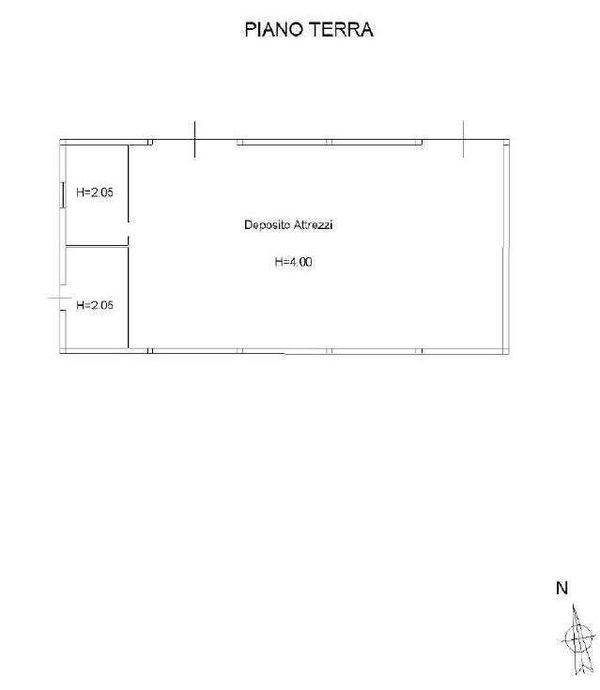
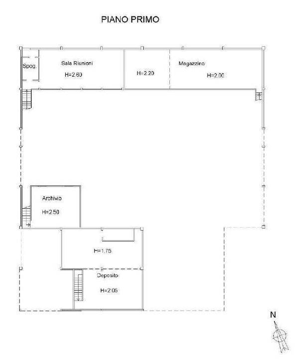
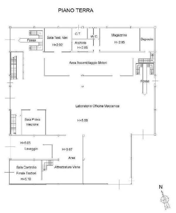
Piena proprietà di capannoni con area esterna di pertinenza siti nel Comune di Nogarole Rocca (VR), Via Roma n. 16. Il primo capannone è composto al piano terra da laboratorio officina meccanica, magazzino, deposito, archivio, w. c. , centrale termica, sale laboratorio, lavaggio, due fosse per ispezione inferiore automezzi, area assemblaggio motori e area attrezzature varie, al piano primo da archivio, deposito, spogliatoio, sala riunioni e magazzino. Il secondo capannone è composto al piano terra da tre locali deposito attrezzi e al piano primo da deposito. La proprietà sviluppa una superficie di circa 1.409 mq.
Per ulteriori informazioni e visite contattare il numero +39 351 6343800 o 0459782475.
La nostra Agenzia, specializzata e riconosciuta, si occupa esclusivamente di Aste Immobiliari. 
Ci occupiamo della ricerca di procedure esecutive e concorsuali fornendo una consulenza tecnico legale, bancaria completa per la partecipazione all'asta e per l'acquisto dell'immobile.
I nostri servizi comprendono:
•Analisi della procedura esecutiva e valutazione del compendio immobiliare.
•Assistenza e Partecipazione all'asta fino all'assegnazione dell'immobile tramite, decreto di trasferimento o acquisto con rogito notarile.
•Ricerca migliore tipologia di finanziamento con gli istituiti di credito convenzionati con i Tribunali per l'acquisto dell'immobile in Asta.
Caratteristiche principali
Codice:
VR16012026
Città:
Nogarole Rocca
Categoria:
Capannone
Locali:
1
Mq:
1409
Classe energetica:
G
Mappa
Via Roma, 16 - Nogarole Rocca (VR)
Cookie preference