Abitazione in asta a Nogara

In vendita
Porzione di Casa
Nogara
127.500 €
Descrizione
Offerta minima € 127.500,00
Rialzo minimo € 1.000,00
Data asta 15/01/2026

Questo immobile rappresenta una delle soluzioni presenti nella tua città, se vuoi conoscerne altre, non esitare a contattarci senza impegno.

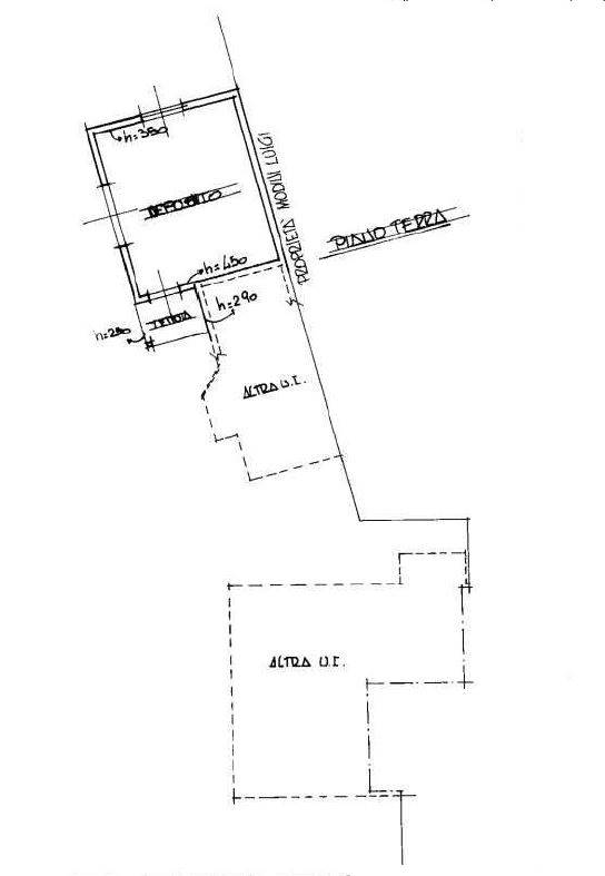
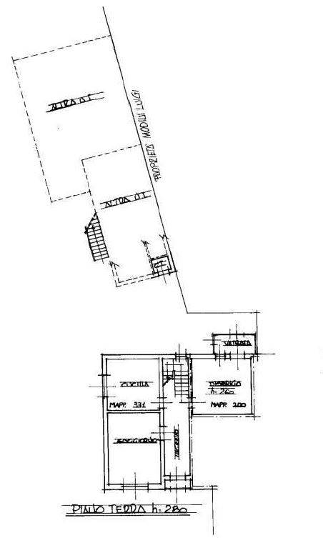
Piena proprietà di porzione di casa binata, unifamiliare disposta su due piani oltre a rustico in corpo di fabbrica distinto, di un'autorimessa e di un deposito con corte, nonché piena proprietà di terreno agricolo non coltivato posto a nord del fabbricato abitativo sita nel Comune di Nogara (VR), Località Montalto, Via Spin n. 14. L'abitazione è composta al piano terra da ingresso, cucina, soggiorno, sala da pranzo e due verande, al piano primo da corridoio, bagno, due camere e poggiolo. L'unità abitativa sviluppa una superficie di circa 152 mq oltre al balcone e veranda di circa 7 mq, al garage di circa 41 mq, al rustico di circa 41 mq, al deposito di circa 66 mq, alla corte di circa 87 mq e al terreno agricolo di circa 682 mq.
Per ulteriori informazioni e visite contattare il numero +39 351 6343800 o 0459782475.
La nostra Agenzia, specializzata e riconosciuta, si occupa esclusivamente di Aste Immobiliari. 
Ci occupiamo della ricerca di procedure esecutive e concorsuali fornendo una consulenza tecnico legale, bancaria completa per la partecipazione all'asta e per l'acquisto dell'immobile.
I nostri servizi comprendono:
•Analisi della procedura esecutiva e valutazione del compendio immobiliare.
•Assistenza e Partecipazione all'asta fino all'assegnazione dell'immobile tramite, decreto di trasferimento o acquisto con rogito notarile.
•Ricerca migliore tipologia di finanziamento con gli istituiti di credito convenzionati con i Tribunali per l'acquisto dell'immobile in Asta.
Caratteristiche principali
Codice:
VR150126
Città:
Nogara
Categoria:
Porzione di Casa
Locali:
7,5
Mq:
259
Box:
1
Mq Box:
41
Mq Giardino:
87
Balconi:
1
Mq Balcone:
7
Classe energetica:
F
Mappa
Via Spin , 14 - Nogara (VR)
Cookie preference