Uffici con archivio e posti auto in asta a Verona

In vendita
Ufficio
Verona
492.000 €
Descrizione
Offerta minima € 492.000,00
Rialzo minimo € 2.000,00
Data asta 04/03/2026

Questo immobile rappresenta una delle soluzioni presenti nella tua città, se vuoi conoscerne altre, non esitare a contattarci senza impegno.

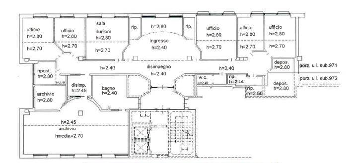
Piena proprietà di due uffici, un archivio e undici posti auto collocati all'interno del complesso immobiliare a destinazione commerciale, residenziale e direzionale, denominato “Corte Pancaldo”, siti nel Comune di Verona (VR), Via Leone Pancaldo. Gli uffici posti al nono piano sviluppano una superficie di circa 327 mq e sono composti da ingresso, cinque locali ufficio, sala riunioni, due locali deposito, due disimpegni, due bagni, quattro locali ripostiglio, due locali archivio. L'archivio sviluppa una superficie di circa 19 mq ed è composto da un unico vano. Gli otto posti auto sviluppano una superficie totale di circa 107 mq oltre alle tre autorimesse di circa 81 mq.
Per ulteriori informazioni e visite contattare il numero +39 351 6343800 o 0459782475.
La nostra Agenzia, specializzata e riconosciuta, si occupa esclusivamente di Aste Immobiliari. 
Ci occupiamo della ricerca di procedure esecutive e concorsuali fornendo una consulenza tecnico legale, bancaria completa per la partecipazione all'asta e per l'acquisto dell'immobile.
I nostri servizi comprendono:
•Analisi della procedura esecutiva e valutazione del compendio immobiliare.
•Assistenza e Partecipazione all'asta fino all'assegnazione dell'immobile tramite, decreto di trasferimento o acquisto con rogito notarile.
•Ricerca migliore tipologia di finanziamento con gli istituiti di credito convenzionati con i Tribunali per l'acquisto dell'immobile in Asta.
Caratteristiche principali
Codice:
VR040326
Città:
Verona
Categoria:
Ufficio
Locali:
1
Mq:
346
Box:
3
Mq Box:
81
Posti auto:
8
Classe energetica:
G
Mappa
Via Leone Pancaldo - Verona (VR)
Cookie preference