Appartamento in asta a Zevio Frazione Volon

In vendita
Appartamento
Zevio (Volon)
25.542 €
Descrizione
Offerta minima € 25.542,00
Rialzo minimo € 1.000,00
Data asta 30/04/2026

Questo immobile rappresenta una delle soluzioni presenti nella tua città, se vuoi conoscerne altre, non esitare a contattarci senza impegno.

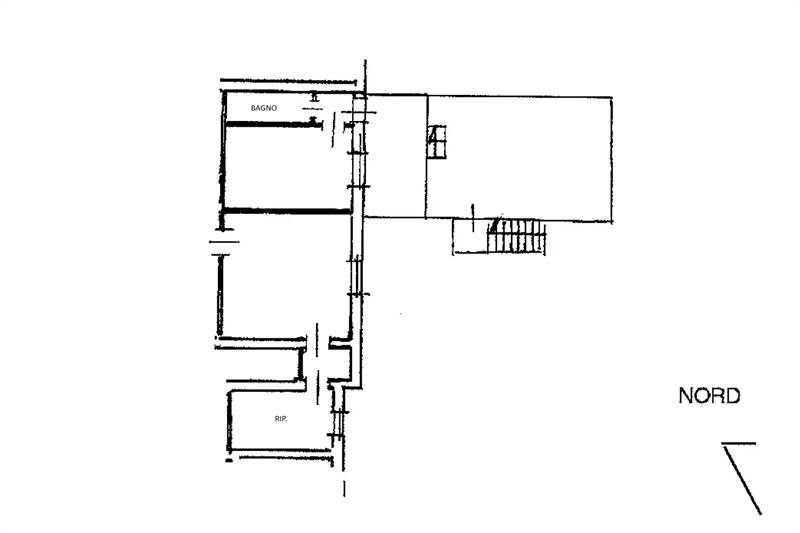
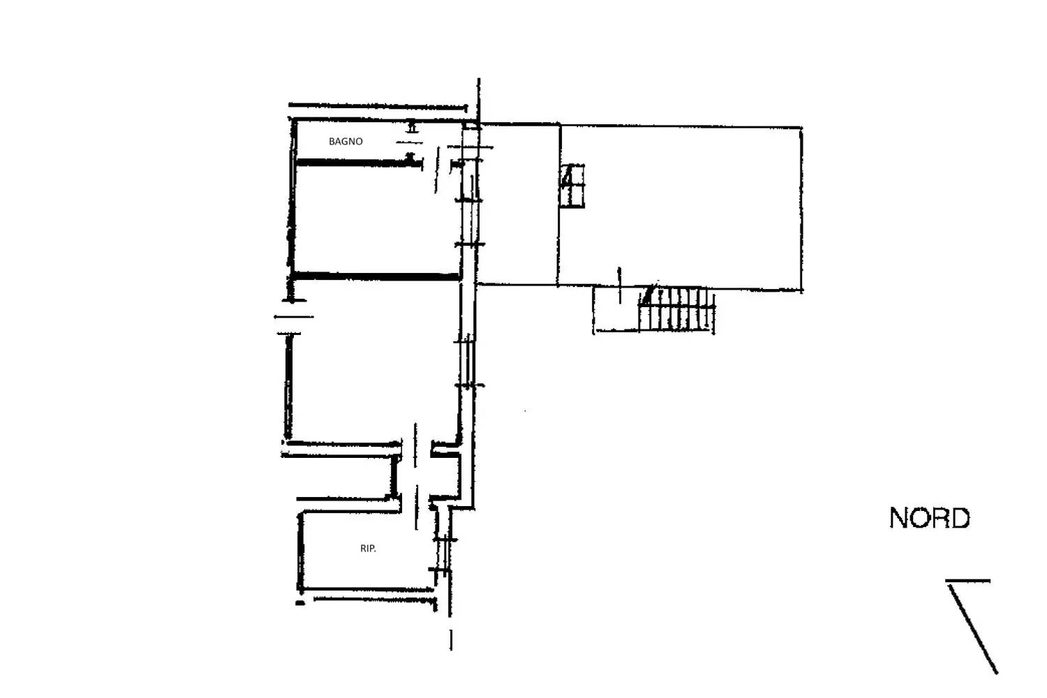
Piena proprietà di appartamento al piano primo sito nel comune di Zevio (VR), Frazione Volon, Piazza della Repubblica (Via Nascimbeni). L'immobile è composto da cucina, bagno, salotto, ripostiglio e terrazza con accesso indipendente da scala esterna. L'unità abitativa sviluppa una superficie di circa 56 mq oltre alla terrazza di circa 26 mq e alla corte comune di circa 233 mq.
Per ulteriori informazioni e visite contattare il numero +39 351 6343800 o 0459782475.
La nostra Agenzia, specializzata e riconosciuta, si occupa esclusivamente di Aste Immobiliari. 
Ci occupiamo della ricerca di procedure esecutive e concorsuali fornendo una consulenza tecnico legale, bancaria completa per la partecipazione all'asta e per l'acquisto dell'immobile.
I nostri servizi comprendono:
•Analisi della procedura esecutiva e valutazione del compendio immobiliare.
•Assistenza e Partecipazione all'asta fino all'assegnazione dell'immobile tramite, decreto di trasferimento o acquisto con rogito notarile.
•Ricerca migliore tipologia di finanziamento con gli istituiti di credito convenzionati con i Tribunali per l'acquisto dell'immobile in Asta.
Caratteristiche principali
Codice:
VR - 300426
Città:
Zevio (Volon)
Categoria:
Appartamento
Locali:
3,5
Mq:
56
Terrazzi:
1
mq Terrazzo:
26
Classe energetica:
G
Mappa
Nascimbeni, snc - Zevio (VR)
Planimetrie
Cookie preference