Complesso immobiliare in asta a Caprino Veronese

In vendita
Capannone
Caprino Veronese
281.969 €
Descrizione
Offerta minima € 281.969,00
Rilancio minimo € 1.000, 00
Data asta 25/02/2026

Questo immobile rappresenta una delle soluzioni presenti nella tua città, se vuoi conoscerne altre, non esitare a contattarci senza impegno.

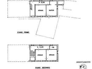
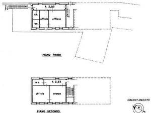
Piena proprietà di complesso immobiliare a destinazione industriale e terreni sito nel Comune di Caprino Veronese (VR), Località Gamberon n. 17. La proprietà è composta da fabbricati industriali suddivisi in tre corpi di fabbrica che sviluppano una superficie di circa 1.709 mq a destinazione laboratorio oltre a qualche locale tecnico e ripostigli; immobile adibito ad ufficio che sviluppa una superficie di circa 159 mq ed è composto al primo piano da corridoio, due uffici, servizio igienico e centrale termica, al secondo piano da corridoio, servizio igienico e due stanze; immobile adibito ad abitazione che sviluppa una superficie di circa 168 mq ed è composto al primo piano da corridoio, due stanze, servizio igienico, al secondo piano da corridoio, ripostiglio e due stanze; da terreni che sviluppano una superficie di circa 10.594 mq.
Per ulteriori informazioni e visite contattare il numero +39 351 6343800 o 0459782475.
La nostra Agenzia, specializzata e riconosciuta, si occupa esclusivamente di Aste Immobiliari. 
Ci occupiamo della ricerca di procedure esecutive e concorsuali fornendo una consulenza tecnico legale, bancaria completa per la partecipazione all'asta e per l'acquisto dell'immobile.
I nostri servizi comprendono:
•Analisi della procedura esecutiva e valutazione del compendio immobiliare.
•Assistenza e Partecipazione all'asta fino all'assegnazione dell'immobile tramite, decreto di trasferimento o acquisto con rogito notarile.
•Ricerca migliore tipologia di finanziamento con gli istituiti di credito convenzionati con i Tribunali per l'acquisto dell'immobile in Asta.
Caratteristiche principali
Codice:
VR - 250226
Città:
Caprino Veronese
Categoria:
Capannone
Locali:
1
Mq:
2036
Classe energetica:
G
Mappa
Località Gamberon, 17 - Caprino Veronese (VR)
Cookie preference