Edificio industriale in asta a Santa Maria di Zevio

In vendita
Negozio
Zevio (Santa Maria)
975.000 €
Descrizione
Offerta minima € 975.000,00
Rialzo minimo € 10.000,00
Data asta 22/04/2026

Questo immobile rappresenta una delle soluzioni presenti nella tua città, se vuoi conoscerne altre, non esitare a contattarci senza impegno.

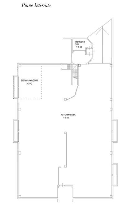
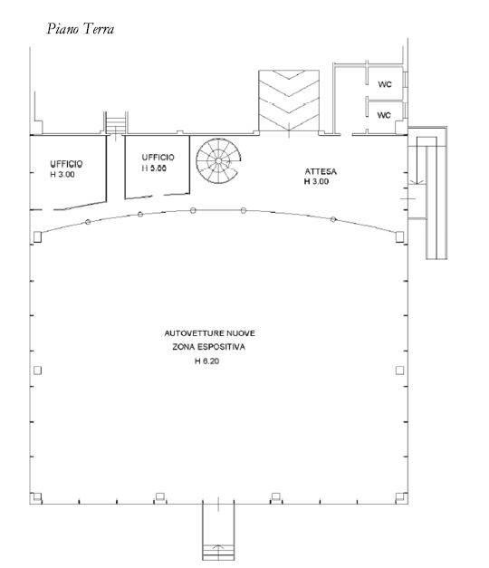
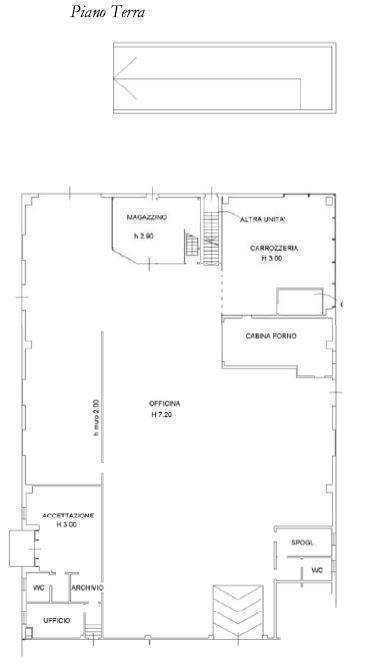
Piena proprietà di edificio industriale adibito a ufficio, concessionaria e officina auto con relativa area di insistenza e pertinenza sito nel Comune di Zevio (VR), Frazione Santa Maria, Via Saturno n. 33. L'immobile è composto al piano interra area destinata ad autorimessa e servizi vari; al piano terra area destinata a esposizione/vendita sul fronte sud e nella parte retrostante dall'officina dell'attività; al piano primo da uffici. La proprietà sviluppa una superficie di circa 2.654 mq ed insiste su un'area di circa 4.000 mq.
Per ulteriori informazioni e visite contattare il numero +39 351 6343800 o 0459782475.
La nostra Agenzia, specializzata e riconosciuta, si occupa esclusivamente di Aste Immobiliari. 
Ci occupiamo della ricerca di procedure esecutive e concorsuali fornendo una consulenza tecnico legale, bancaria completa per la partecipazione all'asta e per l'acquisto dell'immobile.
I nostri servizi comprendono:
•Analisi della procedura esecutiva e valutazione del compendio immobiliare.
•Assistenza e Partecipazione all'asta fino all'assegnazione dell'immobile tramite, decreto di trasferimento o acquisto con rogito notarile.
•Ricerca migliore tipologia di finanziamento con gli istituiti di credito convenzionati con i Tribunali per l'acquisto dell'immobile in Asta.
Caratteristiche principali
Codice:
VR - 220426
Città:
Zevio (Santa Maria)
Categoria:
Negozio
Locali:
1
Mq:
2654
Classe energetica:
G
Mappa
Via Saturno, 33 - Zevio (VR)
Cookie preference