Abitazione in asta a Vigo di Legnago

In vendita
Porzione di Casa
Legnago (Vigo)
56.250 €
Descrizione
Offerta minima € 56.250,00
Rilancio minimo € 1.000,00
Data asta 10/03/2026

Questo immobile rappresenta una delle soluzioni presenti nella tua città, se vuoi conoscerne altre, non esitare a contattarci senza impegno.

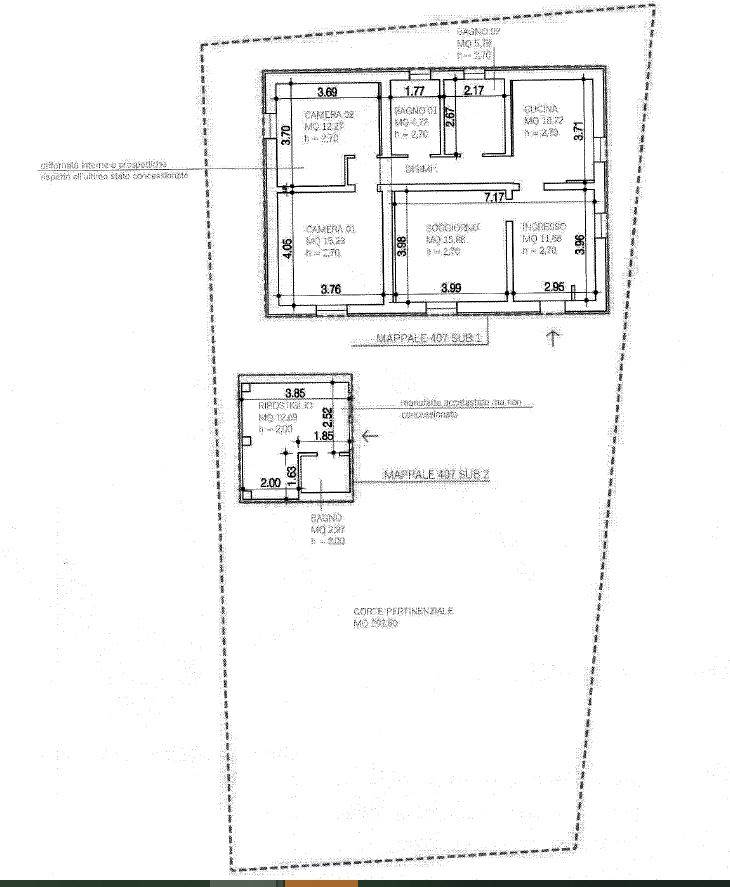
Piena proprietà di fabbricato unifamiliare su un solo livello con autorimessa e corte pertinenziale sito nel Comune di Legnago (VR), Frazione Vigo, Via Codalunga n. 4. L'immobile è composto da ingresso, soggiorno, cucina, corridoio, due camere da letto e due bagni finestrati. L'autorimessa viene utilizzata come ripostiglio ed è presente un bagno. L'unità abitativa sviluppa una superficie di circa 109 mq oltre all'autorimessa/ripostiglio di circa 15 mq e alla corte pertinenziale di circa 293 mq.
Per ulteriori informazioni e visite contattare il numero +39 351 6343800 o 0459782475.
La nostra Agenzia, specializzata e riconosciuta, si occupa esclusivamente di Aste Immobiliari. 
Ci occupiamo della ricerca di procedure esecutive e concorsuali fornendo una consulenza tecnico legale, bancaria completa per la partecipazione all'asta e per l'acquisto dell'immobile.
I nostri servizi comprendono:
•Analisi della procedura esecutiva e valutazione del compendio immobiliare.
•Assistenza e Partecipazione all'asta fino all'assegnazione dell'immobile tramite, decreto di trasferimento o acquisto con rogito notarile.
•Ricerca migliore tipologia di finanziamento con gli istituiti di credito convenzionati con i Tribunali per l'acquisto dell'immobile in Asta.
Caratteristiche principali
Codice:
VR-10032026
Città:
Legnago (Vigo)
Categoria:
Porzione di Casa
Locali:
7
Mq:
109
Box:
1
Mq Box:
15
Mq Giardino:
293
Classe energetica:
F
Mappa
Via Codalunga, 4 - Legnago (VR)
Cookie preference