Uffici e posti auto in asta a Vicenza

In vendita
Ufficio
Vicenza
93.960 €
Descrizione
Offerta minima € 93.960,00
Rilancio minimo € 1.000,00
Data asta 06/03/2026

Questo immobile rappresenta una delle soluzioni presenti nella tua città, se vuoi conoscerne altre, non esitare a contattarci senza impegno.

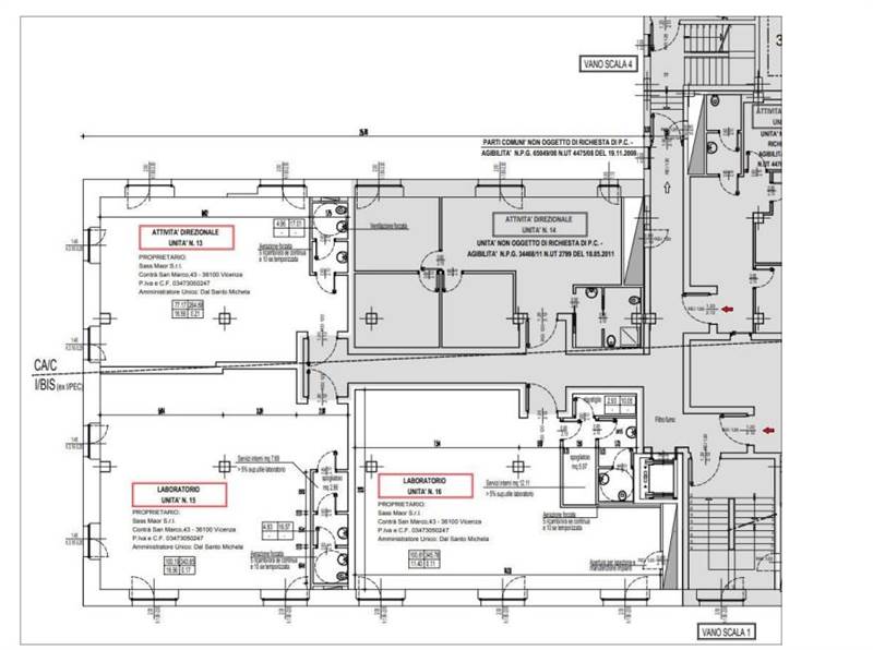
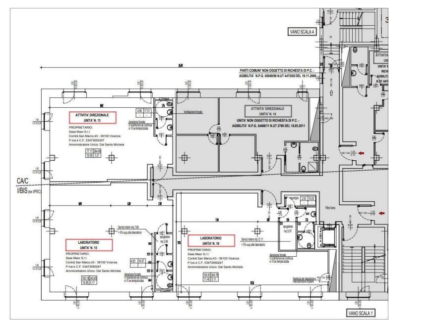
Piena proprietà di uffici e posti auto siti nel Comune di Vicenza (VI), Via Vecchia Ferriera n. 57. L'unità immobiliare sviluppa una superficie di circa 129 mq oltre ai due posti auto di circa 24 mq totali.
Per ulteriori informazioni e visite contattare il numero +39 351 6343800 o 0459782475.
La nostra Agenzia, specializzata e riconosciuta, si occupa esclusivamente di Aste Immobiliari. 
Ci occupiamo della ricerca di procedure esecutive e concorsuali fornendo una consulenza tecnico legale, bancaria completa per la partecipazione all'asta e per l'acquisto dell'immobile.
I nostri servizi comprendono:
•Analisi della procedura esecutiva e valutazione del compendio immobiliare.
•Assistenza e Partecipazione all'asta fino all'assegnazione dell'immobile tramite, decreto di trasferimento o acquisto con rogito notarile.
•Ricerca migliore tipologia di finanziamento con gli istituiti di credito convenzionati con i Tribunali per l'acquisto dell'immobile in Asta.
Caratteristiche principali
Codice:
VI06032026
Città:
Vicenza
Categoria:
Ufficio
Locali:
1
Mq:
129
Posti auto:
2
Classe energetica:
G
Mappa
Via Vecchia Ferriera , 57 - Vicenza (VI)
Planimetrie
Cookie preference